fbpx

Linus Paulings Vej 1 , 2450 København SV

8.000.000 DKK

OM BOLIGEN

At bo i hus på vandet. Det er svært at forestille sig en bedre disponeret husbåd på 140m2, der forener livet på vandet med en moderne boligkomfort. 

Et hjem på vandet er en livsstil, hvor mulighederne er lig med drømmende. Drømmen om et morgendyp året rundt, eller sætte sig direkte i kajakken og sejle gennem kanalerne. 

Husbåden er skønt beliggende i Frederiksholmsløbet ud for Enghave Brygge, 100 meter fra metroen. Dette er et af de mest progressive kvarterer i København, der i hastige skridt er ved at udvikle sig til en af byens moderne oaser. Pakhuse, gammel industri og moderne beboelse forener sig på tværs af hinandens tilstedeværelse, mens kanalerne på kryds og tværs sætter rammen for et hyggeligt og charmerende husbådsmiljø. 

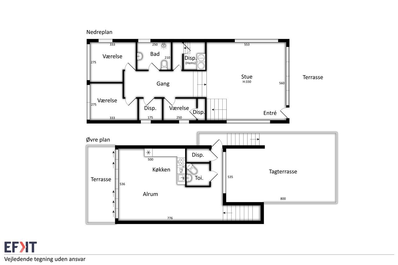
Husbåden er opført som en moderne luksusvilla med alt hvad man med rimelighed kan ønske sig. Entré til hyggeligt terrasseområde på ca. 25 m2, hvorfra der er adgang til bådens store og højloftede stue med brændeovn. Herfra trappe til repos, hyggeligt og moderne indrettet køkkenalrum med udgang til højere beliggende terrasseområde, som er uderum i sommerhalvåret. Fra repos er der udgang til det øverste dæk, som er indrettet som stor solterrasse på ca. 45 m2 med mulighed for udendørs køkken. Desuden toilet og depotrum/spisekammer. I bådens stueplan er der fra opholdsstuen mellemgang til fire værelser; tre gode værelser og et værelse med hems og indbygget vaskerum. Derudover walk-in og badeværelse med brus og toilet. Tilmed har husbåden et kælderrum på størrelse med stueplan. Boligkomforten her bliver kun understreget af, at der er gulvvarme i alle rum.

Husbåden har en længde på 21,3 meter og en bredde på 7,7 meter. En gennemført lækker bolig for det pladskrævende par eller en familie, som ønsker at bo på vandet, midt i Teglholmen, tæt på Enghave Brygge metrostation, tæt på indkøb, tæt på centrum og alligevel langt fra byens hektiske liv.

 Lejekontrakt: Der er en fast kontrakt.  

OPLYSNINGER OM BOLIGEN
KONTANT 8.000.000 DKK
EJERUDGIFT /MD 11.494 DKK
BOLIGAREAL 140 m2
GRUNDAREAL 1 m2
VÆRELSER 5
ENERGIMÆRKE
EJENDOMSTYPE VILLA
BYGGEÅR/OMBYGGET 2016 / 0
KONTAKTPERSON

LAURA LANGHOFF

EJENDOMSMÆGLER MDE


+45 5217 4223

LAURA@ADAMSCHNACK.DK